Detaildatabank

Vind in iedere bouwfase snel en gemakkelijk details

De juiste details snel raadplegen en downloaden? Dat kan via onze detaildatabank waar kalkzandsteen en vloeren op elkaar zijn afgestemd.  De details zijn beschikbaar in drie verschillende formaten: dwg, dxf en pdf. En toepasbaar in zowel de ontwerp-, voorbereidings- als uitvoeringsfase.

Hoe werkt het?

Met het selectieprogramma aan de rechterkant selecteert u het:

  • segment;
  • gewenste niveau;
  • locatie;
  • en materialisatie.

Wilt u meer informatie over bijvoorbeeld dilataties en aansluitingen, brandwerendheid of kimvoegsterkte? Zie onze adviesbladen.

Segment
Niveau
Locatie
Materialisatie
Laden...
Geen resultaten!

Kalkzandsteen eindgevel met PS-combinatievloer

Ankerloze spouwmuur kalkzandsteen verhoogde geluidsisolatie met geïsoleerde kanaalplaatvloer

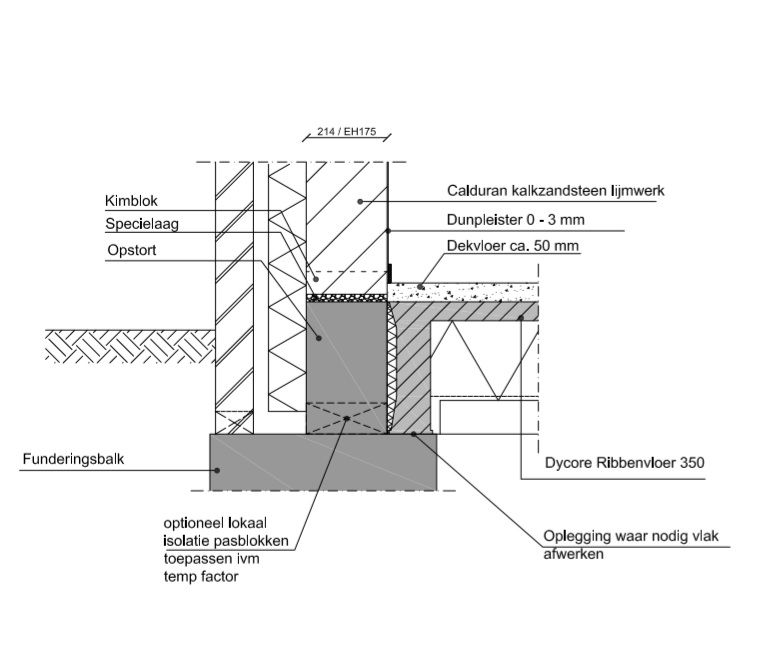
Ankerloze spouwmuur kalkzandsteen verhoogde geluidsisolatie met ribbenvloer

Ankerloze spouwmuur kalkzandsteen, PS-combinatievloer en kruipruimte

Ankerloze spouwmuur kalkzandsteen en vloer op zand

Ankerloze spouwmuur kalkzandsteen en PS-combinatievloer

Kalkzandsteen eindgevel met opstort en kanaalplaatvloer

Kalkzandsteen eindgevel met opstort en ribbenvloer

Kalkzandsteen langsgevel en ribbenvloer en kruipruimte

Kalkzandsteen langsgevel en ribbenvloer